1950/1960 Island Diesel Way, Nanaimo, BC V9S 5W8

  • $23
1950/1960 Island Diesel Way, Nanaimo, BC V9S 5W8
Active
1950/1960 Island Diesel Way, Nanaimo, BC V9S 5W8
1950/1960 Island Diesel Way, Nanaimo, BC V9S 5W8
  • $23

Description

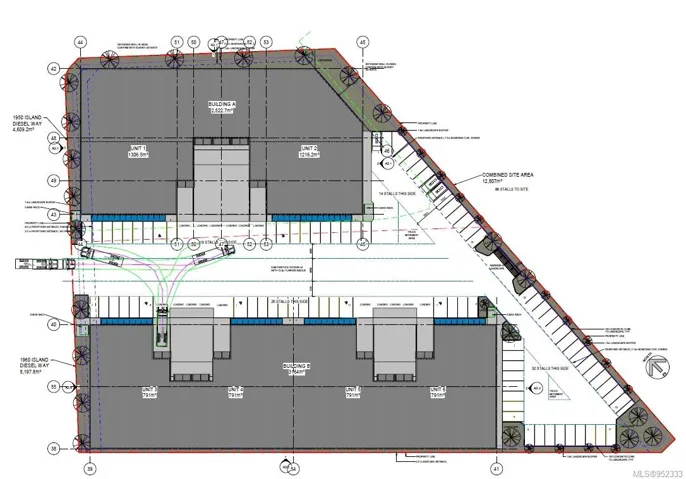
CONSTRUCTION HAS STARTED. Occupancy March 2027. Now pre-leasing industrial warehouse space in the Boxwood Industrial Park. Up to +/- 68,291 square feet available in two buildings with various unit sizes available. Building A offers two units: Unit A1 – 15,232 SF & Unit A2 – 14,928 SF. Building B offers four units: Unit B1 – 9,517 SF, Unit B2 – 9,538 SF, Unit B3 – 9,538 SF, Unit B4 – 9,538 SF. Each unit will feature storefront and dedicated parking at front of building with both grade level and dock height loading bays. This is a central location in Nanaimo and in immediate proximity to a variety of amenities including Country Grocer, Nanaimo Regional General Hospital, Rexall Drug Store, TD Canada Trust and many more. Contact listing agents for further detail.

  • Address 1950/1960 Island Diesel Way
  • City Nanaimo
  • Postal Code V9S 5W8

Details

Updated on March 24, 2026 at 8:44 am
  • Property ID: 952333
  • Price: $23
  • Property Size: 14100 Sqft
  • Garage Size: x x
  • Property Type: Commercial Lease
  • Property Status: Active
  • MLS#: 952333

Additional details

  • County: Nanaimo, City of
  • Property Type: Commercial Lease

Mortgage Calculator

Monthly
  • Down Payment
  • Loan Amount
  • Monthly Mortgage Payment
  • Property Tax
  • Home Owners Insurance
$
%
%
%
%

Similar Listings

Compare listings

Compare