2886 4TH Ave, Port Alberni, BC V9Y 2A9

  • $4,700
2886 4TH Ave, Port Alberni, BC V9Y 2A9
Active
2886 4TH Ave, Port Alberni, BC V9Y 2A9
2886 4TH Ave, Port Alberni, BC V9Y 2A9
  • $4,700

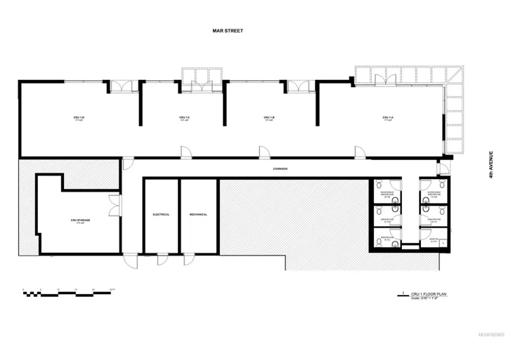
Description

Located at the corner of 4th Avenue and Mar Street in Port Alberni, this new five-storey mixed-use development will offer 2940sq ft of flexible ground-floor commercial space with 40 affordable housing units above. The commercial component provides highly adaptable premises ranging from a minimum of 564 sq ft up to a maximum contiguous area of 2940sq ft across four units. Spaces can be demised into a variety of smaller configurations to suit tenant requirements or combined to accommodate larger users.
Designed in an L-shaped configuration, the building features continuous commercial frontage along both streets, creating excellent visibility and an active streetscape presence. Its prominent corner location maximizes exposure for businesses, while on-site tenant parking and a drive-aisle connection to the rear lane provide convenient access. Construction is anticipated to be completed in July 2027.
PRICE IS GROSS PER MONTH. INCLUDES ALL TRIPLE NET COSTS. GST not included in price.

  • Address 2886 4TH Ave
  • City Port Alberni
  • Postal Code V9Y 2A9

Details

Updated on January 19, 2026 at 10:18 am
  • Property ID: 1023623
  • Price: $4,700
  • Property Size: 1495 Sqft
  • Garage Size: x x
  • Property Type: Commercial Lease
  • Property Status: Active
  • MLS#: 1023623

Additional details

  • County: Port Alberni, City of
  • Property Type: Commercial Lease

Mortgage Calculator

Monthly
  • Down Payment
  • Loan Amount
  • Monthly Mortgage Payment
  • Property Tax
  • Home Owners Insurance
$
%
%
%
%

Similar Listings

Compare listings

Compare