529 Terminal Ave, Nanaimo, BC V9S 4K1

  • $399,900
529 Terminal Ave, Nanaimo, BC V9S 4K1
Active
529 Terminal Ave, Nanaimo, BC V9S 4K1
529 Terminal Ave, Nanaimo, BC V9S 4K1
  • $399,900

Description

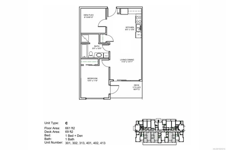
Introducing The Station, an exciting new West Coast-inspired condo community in vibrant Nanaimo, BC. The Station features a mix of micro studios, one and two-bedroom units, many with private balconies showcasing views of Newcastle Channel and Mount Benson. Each home comes equipped with high-quality finishes including premium appliance packages, in-suite laundry, and layouts designed for everyday comfort. Residents enjoy thoughtful amenities including a fitness facility, multipurpose flex room, secure underground parking with EV charging and bike storage, and a pet-friendly environment—making it easy to stay active, work from home, or entertain guests. The Station is just a short stroll to the Harbourfront Walkway, The E&N Trail with easy access to transit, ferries, trails, shops, restaurants, and recreation. Scheduled for completion in summer 2026, this limited opportunity invites you to secure a contemporary, quality-built condo in one of Vancouver Island’s most dynamic communities.

  • Address 529 Terminal Ave
  • City Nanaimo
  • Postal Code V9S 4K1

Details

Updated on April 15, 2026 at 3:42 pm
  • Property ID: 1025214
  • Price: $399,900
  • Property Size: 576 Sqft
  • Bedroom: 1
  • Bathroom: 1
  • Garage Size: x x
  • Year Built: 2026
  • Property Type: Residential
  • Property Status: Active
  • MLS#: 1025214

Additional details

  • Association Fee: 0.00
  • Roof: Membrane
  • Sewer: Septic System
  • Cooling: None
  • Heating: Baseboard,Electric
  • County: Nanaimo, City of
  • Property Type: Residential
  • Parking: Underground
  • Architectural Style: Contemporary,West Coast

Mortgage Calculator

Monthly
  • Down Payment
  • Loan Amount
  • Monthly Mortgage Payment
  • Property Tax
  • Home Owners Insurance
$
%
%
%
%

Similar Listings

Compare listings

Compare