210 Mary St, Victoria, BC V9A 3V9

  • $16
210 Mary St, Victoria, BC V9A 3V9
Active
210 Mary St, Victoria, BC V9A 3V9
210 Mary St, Victoria, BC V9A 3V9
  • $16

Description

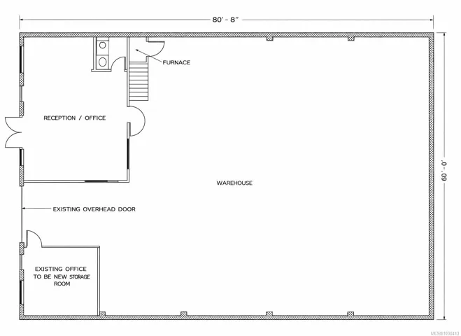
Avison Young is pleased to offer 5482 square feet of industrial space in Victoria West near the inner harbour. The building comprises 4800sq.ft. of main floor area (warehouse and showroom) with 682 sq.ft of finished mezzanine office space. Ceilings are clearspan 18 ft high with one 14ft overhead door. The secure yard area facilitates parking, garbage and storage. Available June 2026

  • Address 210 Mary St
  • City Victoria
  • Postal Code V9A 3V9

Details

Updated on March 31, 2026 at 12:21 pm
  • Property ID: 1030413
  • Price: $16
  • Property Size: 5482 Sqft
  • Garage Size: x x
  • Property Type: Commercial Lease
  • Property Status: Active
  • MLS#: 1030413

Additional details

  • Utilities: See Remarks
  • Heating: Forced Air
  • Flooring: Concrete
  • County: Capital Regional District
  • Property Type: Commercial Lease

Mortgage Calculator

Monthly
  • Down Payment
  • Loan Amount
  • Monthly Mortgage Payment
  • Property Tax
  • Home Owners Insurance
$
%
%
%
%

Similar Listings

Compare listings

Compare